Projetos contra Incêndio

Um imóvel, principalmente um edifício, precisa ter um projeto de combate a incêndio que é criado por um projetista responsável e habilitado para função. Pode também ser chamado como Projeto Preventivo contra Incêndio o que faz grande sentido uma vez que, o intuito é se precaver quanto a possíveis casos em que possa ocorrer um acidente.

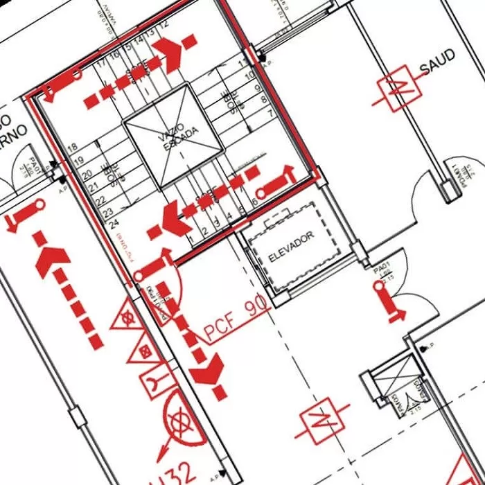
O Sistema de combate a incêndio é muito importante para proteger você, seu prédio e  entorno. Cada pessoa depende do funcionamento correto dos sistemas que combatem incêndio em uma edificação Estes sistemas salvaram milhões de vidas ao longo dos anos.

    Conteúdo do projeto de combate a incêndio

– Ao elaborar o projeto de combate a incêndio ele deverá estar de acordo com as normas do Corpo de Bombeiros e ABNT, que orientam a localização precisa dos componentes de segurança, as características técnicas dos equipamentos, a demanda de água e as indicações referentes à execução das instalações, assim como também:

– Preventivo por Extintores e Hidráulico (este se for necessário);

– Instalações de gás combustível;

– Saídas e iluminação de emergência;

– Proteção contra descargas atmosféricas;

– Sistema de alarme e detecção de incêndio,

– Sinalização de abandono de local.

– Escada pressurizada (se for necessário)

– Splinker (se for necessário)